81373 München

Bieterverfahren! Sendling! ruhige 2-Zimmer-Wohnung! Besichtigung nur am 30.04.2016 um 15:00 Uhr!

verkauft
Objekt-Nr.:
MF-872
Wohnfläche:
ca. 40 m2
Zimmer:
2
Schlafzimmer:
1
Badezimmer:
1
Baujahr:
1962
Etage:
3 von 5
Lift:
ja
Einbauküche:
ja
 
 
 

Objektbeschreibung

Achtung Verkauf im Bieterverfahren! Besichtigung nur am Samstag, den 30.04.2016 um 15.00 Uhr! Gebotsfrist endet am 11.05.2016 um 15.00 Uhr. Mindestgebot € 199.000,- zzgl. 5,95 % Käufer-/Bieterprovision.

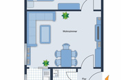
Diese schöne 2-Zimmer-Wohnung liegt im 3. Obergeschoß eines 1962 errichteten, ruhigen Mehrfamilienhauses. Besonders hervorzuheben ist die Lage in einer verkehrsberuhigten Zone. Das Gemeinschaftseigentum und der Gesamteindruck sind sehr gepflegt. Hier finden Sie eine zentrale, nachgefragte Wohnlage in ruhiger Umgebung. Die Aufteilung der Wohnung ist wie folgt:

  • geräumiger Eingangsbereich,
  • Bad,
  • Wohnzimmer,
  • Küche,
  • Schlafzimmer,
  • Aufzug und Parkplätze vor dem Mehrfamilienhaus vorhanden.

Sie suchen eine gut geschnittene Stadtwohnung mit großzügigen Zimmern? Sie wollen vermieten oder selbst beziehen? Dann ist diese Immobilie eine hervorragende Gelegenheit!

 

Ausstattung

Einige Highlights:

  • Fahrstuhl
  • Einbauküche mit schwarzer Granitabdeckplatte
  • Zentralheizung
  • schöner Parkettboden
  • Remise
  • Waschmaschine zur gemeinschaftlichen Benutzung
  • Trockenraum

Lagebeschreibung

Sendling liegt südlich des Stadtbezirks Ludwigvorstadt-Isarvorstadt, grenzt im Westen an die S7-Bahnline und umschließt die Isar inklusive Flaucher im Osten. Historische Ortsteile Sendlings sind Untersendling und Mittelsendling. Fußläufig ist der Westpark in wenigen Minuten zu erreichen

Geschäfte und Einrichtungen wie Apotheke, Lebensmittel-Discount, Allgemeinmediziner, Kindergarten, Grundschule, Hauptschule, Realschule, Gymnasium befinden sich i, näheren Umkreis. In ca. sechs Gehminuten erreichen Sie die U6-Haltestelle "Partnachplatz". Ebenfalls fußläufig gelangen Sie zur S7-Haltestelle "Harras".

 

Energieausweis

Energiebalken
Energieausweistyp:
Verbrauchsausweis
Gültig bis:
21.01.2018
Baujahr des Gebäudes:
1963
Wesentlicher Energieträger:
Öl
Energieverbrauchkennwert:
100.00 kWh/m2
Energieeffizienzklasse:
D
 

Sonstige Angaben

Es liegt ein Energieverbrauchsausweis vor. Dieser ist gültig bis 21.1.2018. Endenergieverbrauch beträgt 100.00 kwh/(m²*a). Wesentlicher Energieträger der Heizung ist Öl. Das Baujahr des Objekts lt. Energieausweis ist 1963. Die Energieeffizienzklasse ist D.

Erläuterungen zum Ablauf des Bieterverfahrens:

Der Verkauf erfolgt im Bieterverfahren. Das Bieterverfahren ist keine Auktion. Der Verkäufer ist frei in seiner Entscheidung, ob er das Angebot annimmt. Auch sind Sie als Käufer nach Abgabe des Angebotes bis zum Notartermin frei. Sie sind durch die Abgabe des Angebotes nicht gebunden. Es handelt sich um eine Kaufabsichtserklärung Ihrerseits zu dem von Ihnen genannten Kaufpreisangebot.

Wenn Sie diese Wohnung kaufen wollen, geben Sie ein schriftliches Gebot ab. Dieses Gebot soll dem maximalen Preis entsprechen, den Sie bereit sind, für das Objekt zu zahlen! Das Kaufpreisangebot muss bei uns bis zum 11.05.2016 um 15.00 Uhr vorliegen!

Der Mindestgebotspreis für die Wohnung liegt bei € 199.000,00!

Das Angebot ist bei uns schriftlich abzugeben. Dieses können sie per Email an office@roethig-immobilien.de, per Fax. an 089/997 297 38 oder mit der Post, an RÖTHIG & RÖTHIG, REM Real Esate Management GmbH & Co. KG, Pienzenauerstraße 2 in 81679 München senden. Die Gebote reichen wir an den Eigentümer weiter.

Der Eigentümer wird dann entscheiden, ob er das Angebot annimmt. Wenn dieser das Angebot annimmt, wird ein Notartermin vereinbart. Sollten Sie die Finanzierung noch nicht geklärt haben, muss dies zwischenzeitlich erfolgen.

Erst mit dem Notarvertrag sind Sie und der Verkäufer gebunden. Auch erst mit Kaufvertragsabschluss fällt die Bieter/Käuferprovision an.

Die Bieter/Käuferprovision beträgt im Falle des tatsächlichen käuflichen Erwerb 5,95 % Bieter/Käuferprovision einschließlich Mehrwertsteuer. Berechnungsgrundlage ist der Kaufpreis, fällig mit Abschluss des Kaufvertrages. Für Sie fallen bis zum tatsächlichen Kauf und der Beurkundung selbstverständlich keine Kosten an. Haben Sie weitere Fragen zum Ablauf des Bieterverfahrens? Bitte kontaktieren Sie uns!

Immobilie ist bereits erfolgreich verkauft

Diese Immobilie ist bereits verkauft. Wenn Sie eine ähnliche Immobilie suchen, stöbern Sie gerne in unseren aktuellen Angeboten.

zu den Angeboten ...

Daten­schutz­ein­stellungen

Diese Webseite nutzt externe Medien, wie z.B. Karten von Google Maps und Videos von YouTube, und externe Analyse-/Marketingwerkzeuge, wie z.B. etracker, welche alle dazu genutzt werden können, Daten über Ihr Verhalten zu sammeln. Dabei werden auch Cookies gesetzt. Die Einwilligung zur Nutzung der Erweiterungen können Sie jederzeit anpassen bzw. widerrufen.
Eine Erklärung zur Funktionsweise unserer Datenschutzeinstellungen und eine Übersicht zu den verwendeten externen Komponenten finden Sie in unserer Datenschutzerklärung

Welche Cookies bzw. Erweiterungen möchten Sie zulassen?