82061 Neuried

Neuried - Im Grünen, nah an der Stadt! Idyllisches Reihenendhaus mit ruhigem Süd/Westgarten & Garage.

verkauft
Objekt-Nr.:
AJ-2860
Wohnfläche:
ca. 152 m2
Nutzfläche:
ca. 56 m2
Grundstück:
ca. 278 m2
Zimmer:
6
Schlafzimmer:
5
Badezimmer:
2
Terrassen:
1
Stellplätze:
1
Baujahr:
1988
Etage:
- von 3
Einbauküche:
ja
 
 
 

Objektbeschreibung

Wir freuen uns sehr Ihnen dieses ruhige & im grünen liegende Reihenendhaus in der südwestlichen Gemeinde Münchens - Neuried - zum Verkauf im Bieterverfahren anbieten zu dürfen.

Das Haus erreichen Sie über eine schöne, naturbelassene Einfahrt mit direkter Garagenzufahrt. Zu dieser Seite befindet sich ebenfalls die westliche Hauswand, welche mit einer imposanten Weinrebe begrünt ist und im Sommer schön gedeiht. Nach Süd-Westen gerichtet befindet sich der schöne aber vor allem auch ruhige Garten, in welchem Sie noch bis in die Abendstunden Sonne auf Ihrer Terrasse oder auch auf dem Balkon im ersten Stock genießen können. Sie erreichen den Garten und die Terrasse sowohl direkt durch die Garage wie auch durch ein Gartentor. Zudem findet sich neben der Garage noch Platz für ein Kleinfahrzeug/Zweitfahrzeug.

In dieser absolut ruhigen Nachbarschaft können Sie die Vögel zwitschern hören, die Natur genießen sowie mit den Nachbarn grillen.

Über den Hauseingang, welcher sich auf der Nordseite mit einem kleinem Anwohnerweg befindet, erreichen Sie das Erdgeschoss mit zwei Gartenzugängen. Dieses verfügt über ein Gäste-WC, einer schönen hellen und geräumigen Küche, einer Garderobe und einem großen Wohn-/Essbereich in welchem die ganze Familie Platz findet. Für eine besonders wohlige Atmosphäre sorgt der Kachelofen. Alle Räume sind mit Fenstern ausgestattet, sodass den ganzen Tag über in sämtlichen Wohnräumen natürliches Tageslicht erstrahlt.

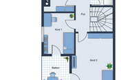
Im Obergeschoss, welches Sie über eine schön gepflegte Steintreppe erreichen, finden Sie drei Kinderzimmer, wovon zwei mit einem direktem Balkonzugang zur Süd-West-Seite ausgestattet sind. Zusätzlich verfügt das Obergeschoss über ein Tageslichtbad mit Badewanne, WC, Dusche und einem Doppelwaschbecken.

Das Dachgeschoss, welches in den originalen Plänen als Speicher ausgewiesen ist, wurde in Abstimmung zwischen dem Bauträger und dem Eigentümer ausgebaut. Es wurden auch Anschlüsse für eine Küchenzeile angebracht. (Diese werden aber derzeit nicht genutzt - da die Küche im Erdgeschoss liegt).

Dieses verfügt über ein Masterschlafzimmer inkl. der Möglichkeit einer begehbaren Ankleide und Fenstern, einem weiteren Zimmer - welches als Büro genutzt werden kann, sowie einem Badezimmer in schönem Mosaik Stil mit Dusche.

Dieses schöne Haus, mit seiner Architektur und Großzügigkeit bietet sich perfekt für Familien an und lässt aufgrund seiner Zimmeranzahl sämtliche Belegungsmöglichkeiten zu.

Das Haus ist komplett unterkellert. Im Untergeschoss finden Sie drei Kellerräume und die Gasheizung. Zudem erstreckt sich über dem Dachgeschoss nochmals ein kleiner Speicher, welcher zusätzlichen Stauraum bietet. Durch die vielen Fenster & die optimale Ausrichtung erstrahlt das Haus ganztags im Licht - überzeugen Sie sich selbst.

 

Ausstattung

EINIGE HIGHLIGHTS IM ÜBERBLICK:

  • beliebte, ruhige und gut erreichbare Lage in München-Neuried
  • fünf Schlafzimmer und zwei separate Bäder
  • ruhiger Garten mit Terrasse in Süd-Westausrichtung
  • Balkonterrasse im Obergeschoss mit zwei Zugängen in Süd-Westausrichtung
  • Garderobe im Flur
  • Gäste-WC
  • direkter Garten-/Terrassenzugang von der Garage
  • großzügiger und durchdachter Grundriss
  • Einbauküche
  • Stauraum im Speicher
  • hervorragende Verkehrsanbindung an die Stadt & Freizeitaktivitäten
  • viele Einkaufsmöglichkeiten sowohl mit dem Rad wie mit dem Auto
  • uvm.

Lagebeschreibung

Die Gemeinde Neuried liegt am südwestlichen Rand der Landeshauptstadt und grenzt direkt an die Münchner Stadtbezirke Hadern und Forstenried/Fürstenried/Solln sowie im Süden an das zum Forstenrieder Park gehörende Gebiet des Forst Kasten an. Nur wenige Schritte vor der Stadtgrenze Münchens gelegen bietet Neuried, umgeben von weitläufigen Wäldern, einen großen Freizeit- und Erholungswert. Die gute Verkehrsanbindung mit ÖPNV und Fernstraßen sowie die Erweiterung der Einkaufsmöglichkeiten spricht für diesen lebens- und liebenswerten Ort Neuried.

In vier Kindergärten, dem Kinderhort, drei Kinderkrippen und einer Grundschule sind die Kinder bestens aufgehoben. Anschließende Schulen, wie eine Mittelschule, Realschule und das hiesige Gymnasium sind in wenigen Minuten mit dem Auto oder dem Bus erreichbar. Musikschule, Bücherei und Jugendtreff bieten vielfältige Freizeitmöglichkeiten. Zahlreiche Vereine und Organisationen garantieren weitere Angebote im Freizeitbereich, pflegen alte Traditionen und sorgen für ein lebendiges Für- und Miteinander.

Hinzu kommt das neue Sportzentrum, welches über drei Fußballplätze, Sommerstockbahnen sowie eine Dreifachturnhalle verfügt und somit eine der modernsten und größten Sportanlagen im Umkreis darstellt.

Selbst ohne Auto ist das pulsierende Leben in der Metropole München durch gute U-Bahn- (U3, U6) und Busverbindungen (260, 261, 267, 269) in einer halben Stunde erreichbar. Ebenso finden Sie nicht unweit des Hauses eine Bushaltestelle. Die Vorzüge der idyllischen Gemeinde liegen in der Nähe zum 5-Seen-Land und den Bergen. Innerhalb einer viertel Stunde ist der Starnberger See erreichbar (A95, A96) und die nahen Skigebiete liegen gerade mal eine Stunde vor der Haustür. Zu Fuß erreichen Sie innerhalb von drei Minuten den nächsten Wald. Südlich von Neuried befindet sich zudem das Naherholungsgebiet „Forstenrieder Park“, welches mit seinen schönen Rad- und Wanderwegen Anziehungspunkt für so manchen Naturfreund ist. Auch an einer hervorragenden Grundversorgung fehlt es nicht. Durch die ortsansässigen Kinderhäuser, Kindergärten, Kinderkrippen sowie Grundschulen wird Neuried für Familien zum bedeutsamen Lebensmittelpunkt. Zahlreiche Einkaufsmöglichkeiten wie z.B. Aldi Süd, Rewe oder ein Drogeriemarkt befinden sich in unmittelbarer Nähe.

 

Energieausweis

Energiebalken
Energieausweistyp:
Verbrauchsausweis
Gültig bis:
27.05.2031
Baujahr des Gebäudes:
1988
Wesentlicher Energieträger:
Gas
Energieverbrauchkennwert:
139.10 kWh/m2
Energieeffizienzklasse:
E
 

Sonstige Angaben

Es liegt ein Energieverbrauchsausweis vor. Dieser ist gültig bis 27.5.2031. Endenergieverbrauch beträgt 139.10 kwh/(m²*a). Wesentlicher Energieträger der Heizung ist Gas. Das Baujahr des Objekts lt. Energieausweis ist 1988. Die Energieeffizienzklasse ist E.

Bei diesem Objekt ist nicht vorgesehen, dass der Käufer mit uns eine eigenständige Provisionsvereinbarung trifft, sofern dieser als Verbraucher (§ 14 BGB) zu qualifizieren ist. Der Verkauf erfolgt nur an denjenigen, der sich bereit erklärt, einen Teil der vom Verkäufer zugesagten Provision zu übernehmen (maximal 50% vgl. § 656d BGB). Dieser Anteil beträgt 1,785% inkl. Umsatzsteuer.

Erläuterungen zum Ablauf des Bieterverfahrens:

Der Verkauf erfolgt im Bieterverfahren. Das Bieterverfahren ist keine Auktion. Der Verkäufer ist frei in seiner Entscheidung, ob er das Angebot annimmt. Auch sind Sie als Käufer nach Abgabe des Angebotes bis zum Notartermin frei. Sie sind durch die Abgabe des Angebotes nicht gebunden. Es handelt sich um eine Kaufabsichtserklärung Ihrerseits zu dem von Ihnen genannten Kaufpreisangebot.

Wenn Sie dieses schöne Reihenhaus inkl. Garage kaufen wollen, geben Sie ein schriftliches Gebot ab. Dieses Gebot soll dem maximalen Preis entsprechen, den Sie bereit sind, für das Objekt zu zahlen!

Sollte der Eigentümer eines der Gebote für angemessen halten, behalten wir uns vor, das Gebotsverfahren abzuschließen. Wir empfehlen daher zeitnah Angebote abzugeben. Selbstverständlich haben Sie ausreichend Zeit, um Ihren Angebotspreis zu kalkulieren.

Der Mindestgebotspreis für dieses schöne Reihenhaus inkl. Garage liegt bei € 900.000, -.

Das Angebot ist bei uns schriftlich abzugeben. Dieses können Sie per E-Mail an office@roethig-immobilien.de, per Fax. an 089-997 297-38 oder mit der Post, an RÖTHIG & RÖTHIG, REM Real Estate Management GmbH & Co. KG, Pienzenauerstraße 2 in 81679 München senden. Die Gebote reichen wir an den Eigentümer weiter.

Der Eigentümer wird dann entscheiden, ob er das Angebot annimmt. Wenn dieser das Angebot annimmt, wird ein Notartermin vereinbart. Sollten Sie die Finanzierung noch nicht geklärt haben, muss dies zwischenzeitlich erfolgen. Erst mit dem Notarvertrag sind Sie und der Verkäufer gebunden. Auch erst mit Kaufvertragsabschluss fallen Kosten an.

Für Sie fallen bis zum tatsächlichen Kauf und der Beurkundung selbstverständlich keine Kosten an. Haben Sie weitere Fragen zum Ablauf des Bieterverfahrens? Bitte kontaktieren Sie uns!

Immobilie ist bereits erfolgreich verkauft

Diese Immobilie ist bereits verkauft. Wenn Sie eine ähnliche Immobilie suchen, stöbern Sie gerne in unseren aktuellen Angeboten.

zu den Angeboten ...

Daten­schutz­ein­stellungen

Diese Webseite nutzt externe Medien, wie z.B. Karten von Google Maps und Videos von YouTube, und externe Analyse-/Marketingwerkzeuge, wie z.B. etracker, welche alle dazu genutzt werden können, Daten über Ihr Verhalten zu sammeln. Dabei werden auch Cookies gesetzt. Die Einwilligung zur Nutzung der Erweiterungen können Sie jederzeit anpassen bzw. widerrufen.
Eine Erklärung zur Funktionsweise unserer Datenschutzeinstellungen und eine Übersicht zu den verwendeten externen Komponenten finden Sie in unserer Datenschutzerklärung

Welche Cookies bzw. Erweiterungen möchten Sie zulassen?