85055 Ingolstadt

Verkauft im Bieterverfahren - Ingolstadt - Zwei gepflegte MFH's mit 12 Wohneinheiten, 12 Stellplätzen und nicht ausgebautem DG!

verkauft
Objekt-Nr.:
AJ-3765
Wohnfläche:
ca. 917 m2
Nutzfläche:
ca. 60 m2
Grundstück:
ca. 1.417 m2
Zimmer:
36
Schlafzimmer:
24
Badezimmer:
12
Balkone:
12
Baujahr:
1965
Etage:
- von 2
 
 
 

Objektbeschreibung

Im Alleinauftrag verkaufen wir exklusiv zwei solide, gepflegte Mehrfamilienhäuser in gefragter, urbaner Lage in Ingolstadt, im Original RÖTHIG und RÖTHIG Bieterverfahren.

Der Startpreis für dieses attraktive Investment liegt unter 2000,00€/m².

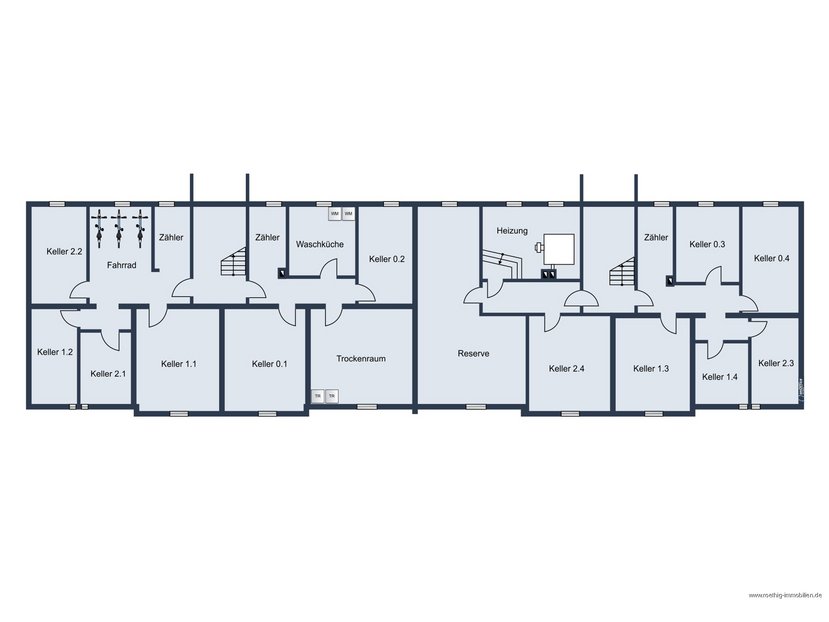
Das zum Verkauf stehende Anwesen erstreckt sich über zwei Häuser welche im Jahr 1965 erbaut wurden und über zwei separate Hauseingänge verfügen. Die Wohnfläche von insgesamt ca. 917 m² teilt sich in 12 Wohneinheiten auf. Alle Wohnungen sind aktuell vermietet. Zusätzlich befinden sich auf dem ca. 1.417 m² großen Grundstück insgesamt 12 Außenstellplätze. Eine Abgeschlossenheitsbescheinigung liegt bereits vor.

Das teilisolierte und mietfreie Dachgeschoss des Hauses ist nicht ausgebaut und ungenutzt. Beheizt wird das Haus durch eine im Keller befindliche Gaszentralheizung, bei welcher im Jahr 2022 der Heizkessel erneuert wurde. Das Untergeschoss des Hauses beherbergt neben dem Heizungsraum die einzelnen, den Wohnungen zugeordneten, Kellerabteile.

Eine detaillierte Mietertragsaufstellung mit weiteren, umfangreichen Informationen zu den bestehenden Mietverhältnissen erhalten Sie gerne auf Anfrage.

WICHTIGER HINWEIS: Bitte beachten Sie, dass Besichtigungen ausschließlich mit uns möglich sind. Die Eigentümer legen berechtigterweise großen Wert darauf, dass die Kaufinteressenten die Besichtigungen mit uns abstimmen und keine unangemeldeten Besuche vor Ort erfolgen.

 

Ausstattung

HIGHLIGHTS

  • zwei Mehrfamilienhäuser in gefragter Lage in Ingolstadt
  • ideale Verkehrsanbindung
  • vorliegende Abgeschlossenheitsbescheinigung
  • ca. 1.417 m² großes Grundstück
  • Wohnfläche von insgesamt 917 m²
  • 12 Wohneinheiten
  • 12 Außenstellplätzte
  • gepflegter Gesamtzustand
  • voll vermietet
  • nicht ausgebautes Dachgeschoss
  • uvm.

Lagebeschreibung

Das Mehrfamilienhaus liegt in Ingolstadt Nord-Ost, einem familienfreundlichen Wohngebiet, das durch seine Nähe zur Ingolstädter Innenstadt sowie zu verschiedensten Grünanlagen in der Stadt besticht.

Die zentrale Lage und die gute Infrastruktur mit vielen Geschäften des täglichen Bedarfs, welche sich in unmittelbarer Umgebung der Immobilie befinden, machen diesen Ort zu einer attraktiven Adresse. Supermärkte, Bäckereien, Drogerien, Apotheken und Banken sind in unter 10 Minuten fußläufig zu erreichen. Möchten Ihre Mieter nach einem langen Arbeitstag den Abend ausklingen lassen, laden zahlreiche Bars und Restaurants zu einem Drink oder einem schönen Abendessen ein. Einer der größten Arbeitgeber in Ingolstadt ist, mit rund 40.000 Mitarbeitern und verschiedensten Arbeitsstellen, die Firma Audi.

Auch die Kinder Ihrer Mieter profitieren von der herausragenden Lage. In unmittelbarer Nähe befindet sich der „Ev. Kindergarten St. Paulus“, dieser ist nur ca. 2 Gehminuten entfernt. Auch die „Grundschule an der Pestalozzistraße“ ist in ca. 10 Minuten zu Fuß gut zu erreichen. Weiterführende Schulen wie Realschulen und Gymnasien sind bequem mit dem Fahrrad in ca. 10 Minuten erreichbar. Die „Katholische Universität Eichstätt-Ingolstadt“ ist in ca. 11 Minuten mit dem Fahrrad zu erreichen. Die „Technische Hochschule Ingolstadt“ ist nur ca. 7 Minuten mit dem Fahrrad entfernt.

In unmittelbarer Nähe befinden sich mehrere Haltestellen des öffentlichen Nahverkehrs, was eine bequeme Nutzung der öffentlichen Verkehrsmittel ermöglicht und eine gute Anbindung an das Stadtzentrum und andere Stadtteile bietet. Die nächsten Bushaltestellen sind in wenigen Gehminuten erreichbar, Die Bushaltestelle an der Theodor-Heuss-Straße befindet sich direkt vor dem Haus und bietet die Anbindung an die Buslinien 70, S7 und die Nachtbuslinie N6. Von der Bushaltestelle „Oberer Grasweg“, welche nur ca. 3 Gehminuten entfernt liegt, fährt die Buslinien 30 sowie der Nachtbus N5. Die Haltestelle „Lena-Christ-Straße“ ist ca. 5 Minuten entfernt und bietet Anschluss an die Buslinie 9221. Den Hauptbahnhof, welcher als Verkehrsknotenpunkt an regionale sowie überregionale Ziele angebunden ist, erreichen Ihre Mieter in ca. 17 Minuten. Regionale Zuganbindungen haben Ihre Mieter auch durch den Bahnhof „Ingolstadt Nord“. Dieser ist nur ca. 5 Minuten mit dem Fahrrad entfernt. Auch der „ZOB Busbahnhof Ingolstadt“ liegt nur ca. 10 Minuten mit dem Fahrrad entfernt.

Die ca. 3 Minuten mit dem Auto entfernt gelegene B13 bietet Anschluss an verschiedene Stadtteile, sowie die B16a, welche sowohl Anschluss an die Autobahn als auch an andere Städte bietet. Somit sind Ihre Mieter bestens mit regionalen sowie überregionalen Zielen verbunden. Über die nahe gelegene Autobahn A9 (München-Nürnberg), welche nur etwa 4 Minuten mit dem Auto entfernt befindet, erreichen Ihre Mieter ebenfalls den „Ingolstadt Manching Airport“ in ca. 16 Minuten mit dem Auto.

 

Grundrisspläne

Energieausweis

Energiebalken
Energieausweistyp:
Verbrauchsausweis
Gültig bis:
30.10.2034
Baujahr des Gebäudes:
1965
Wesentlicher Energieträger:
Gas
Energieverbrauchkennwert:
173.80 kWh/m2
Energieeffizienzklasse:
F
 

Sonstige Angaben

Es liegt ein Energieverbrauchsausweis vor. Dieser ist gültig bis 30.10.2034. Endenergieverbrauch beträgt 173.80 kwh/(m²*a). Wesentlicher Energieträger der Heizung ist Gas. Das Baujahr des Objekts lt. Energieausweis ist 1965.

Erläuterungen zum Ablauf des Bieterverfahrens:

Der Verkauf erfolgt im Bieterverfahren. Das Bieterverfahren ist keine Auktion. Der Verkäufer ist frei in seiner Entscheidung, ob er das Angebot annimmt. Auch sind Sie als Käufer nach Abgabe des Angebotes bis zum Notartermin frei. Sie sind durch die Abgabe des Angebotes nicht gebunden. Es handelt sich um eine Kaufabsichtserklärung Ihrerseits zu dem von Ihnen genannten Kaufpreisangebot.

Wenn Sie diese Mehrfamilienhäuser inklusive der Außenstellplätze kaufen wollen, geben Sie ein schriftliches Gebot ab. Dieses Gebot soll dem maximalen Preis entsprechen, den Sie bereit sind, für das Objekt zu zahlen!

Sollte der Eigentümer eines der Gebote für angemessen halten, behalten wir uns vor, das Gebotsverfahren abzuschließen. Wir empfehlen daher zeitnah Angebote abzugeben.

Der Mindestgebotspreis für die Mehrfamilienhäuser inklusive der Außenstellplätze liegt bei€ 1.800.000,00.

Das Angebot ist bei uns schriftlich abzugeben. Dieses können Sie per Email an office@roethig-immobilien.de, per Fax. an 089-997 297-38 oder mit der Post, an RÖTHIG & RÖTHIG, REM Real Estate Management GmbH & Co. KG, Pienzenauerstraße 2 in 81679 München senden. Die Gebote reichen wir an den Eigentümer weiter.

Der Eigentümer wird dann entscheiden, ob er das Angebot annimmt. Wenn dieser das Angebot annimmt, wird ein Notartermin vereinbart. Sollten Sie die Finanzierung noch nicht geklärt haben, muss dies zwischenzeitlich erfolgen. Erst mit dem Notarvertrag sind Sie und der Verkäufer gebunden. Auch erst mit Kaufvertragsabschluss fällt die Bieter-/Käuferprovision an.

Bei diesem Objekt ist nicht vorgesehen, dass der Käufer mit uns eine eigenständige Provisionsvereinbarung trifft, sofern dieser als Verbraucher (§ 14 BGB) zu qualifizieren ist. Der Verkauf erfolgt nur an denjenigen, der sich bereit erklärt, einen Teil der vom Verkäufer zugesagten Provision zu übernehmen (maximal 50% vgl. § 656d BGB). Dieser Anteil beträgt 3,57% inkl. Mehrwertsteuer.

Immobilie ist bereits erfolgreich verkauft

Diese Immobilie ist bereits verkauft. Wenn Sie eine ähnliche Immobilie suchen, stöbern Sie gerne in unseren aktuellen Angeboten.

zu den Angeboten ...

Daten­schutz­ein­stellungen

Diese Webseite nutzt externe Medien, wie z.B. Karten von Google Maps und Videos von YouTube, und externe Analyse-/Marketingwerkzeuge, wie z.B. etracker, welche alle dazu genutzt werden können, Daten über Ihr Verhalten zu sammeln. Dabei werden auch Cookies gesetzt. Die Einwilligung zur Nutzung der Erweiterungen können Sie jederzeit anpassen bzw. widerrufen.
Eine Erklärung zur Funktionsweise unserer Datenschutzeinstellungen und eine Übersicht zu den verwendeten externen Komponenten finden Sie in unserer Datenschutzerklärung

Welche Cookies bzw. Erweiterungen möchten Sie zulassen?