85402 Kranzberg

Exklusives Villenanwesen mit Einliegerwohnung & Luxusausstattung - Traumhafte Wohnidylle nahe Freising

neu
Objekt-Nr.:
LS-4107
Mindestgebot:
1.500.000 €
Wohnfläche:
ca. 339 m2
Nutzfläche:
ca. 150 m2
Grundstück:
ca. 570 m2
Zimmer:
8
Schlafzimmer:
4
Badezimmer:
4
Terrassen:
3
Stellplätze:
2
Baujahr:
2011
Etage:
- von 3
Provision:
siehe sonstige Angaben.
 
 
 

Objektbeschreibung

Wir freuen uns, Ihnen dieses exklusive Villenanwesen in ruhiger und familienfreundlicher Lage nahe Freising im Original RÖTHIG & RÖTHIG Bieterverfahren präsentieren zu dürfen.

Das freistehende Einfamilienhaus mit separat zugänglicher Einliegerwohnung wurde 2011/2012 erbaut und überzeugt durch luxuriöse, hochwertige Ausstattung, technische Raffinessen sowie eine durchdachte und lichtdurchflutete Raumaufteilung. Beim Bau des Anwesens wurde ganz besonders viel Wert auf höchste Bauqualität, luxuriösen Komfort und ein geschmackvolles Ambiente gelegt. Der hervorragende Zustand der Immobilie vermittelt den Eindruck eines Erstbezugs.

Das schöne Grundstück erstreckt sich über eine Fläche von ca. 570 m². Auf Wunsch kann das angrenzende Baugrundstück mit bereits bestehender, voll unterkellerten Doppelgarage zusätzlich erworben werden.

Die Gesamtwohnfläche inklusive Einliegerwohnung beträgt ca. 339 m² zuzüglich weiterer ca. 45 m² im Souterrain. Ergänzt wird die großzügige Wohnfläche um weitere 105 m² Nutzfläche, die viel Platz und Stauraum bietet. Mit fünf großzügigen Zimmern und dem beeindruckenden Studio im Hauptbereich sowie der separat zugänglichen Einliegerwohnung, ergeben sich flexible Nutzungsmöglichkeiten. Ideal für Familien, Mehrgenerationenhaushalte oder Wohnen und Arbeiten unter einem Dach. Die abgeschlossene Einliegerwohnung mit eigener Terrasse und kleinem Garten eignet sich auf Wunsch auch perfekt zur Vermietung. Hier können Sie Ihre Wohnträume in einer attraktiven Lage verwirklichen.

Der repräsentative Einfahrtsbereich mit überdachtem, unterkellerten Carport ist eingebettet in eine parkähnliche Gartenanlage mit hochwertigem Lichtkonzept für eindrucksvolle Abendstimmung.

Im gesamten Haus wurde edler Parkettboden sowie stilvolles Feinsteinzeug verlegt. Sämtliche Glasfronten sind dreifach verglast, bodentief und teilweise raumhoch ausgeführt – für maximale Belichtung. Die individuell regulierbare Fußbodenheizung sorgt in allen Räumen für angenehme Wärme. In Küche, Essen und Wohnen wurde zusätzlich eine Wandheizung verbaut. Elektrisch steuerbare Raffstore-Rollläden bieten komfortablen Sonnenschutz im ganzen Haus.

Links des großzügigen Eingangsbereichs befindet sich die Garderobe. Direkt daneben: eines von drei luxuriösen Bädern des Haupthauses mit bodengleicher Walk-In-Dusche und Waschmaschinenanschluss in maßgefertigten Einbaumöbeln.

Ein deckenhohes Windfangelement führt in den lichtdurchfluteten Wohn-, Ess- und Küchenbereich – das Herzstück des Hauses. Die exklusive Einbauküche mit großer Insel, harmonischem Essbereich und ca. 12 m langer Glasfront mit drei Schiebetüren öffnet sich zur Süd-West-Terrasse und dem umlaufenden Garten.

Ein weiteres, ca. 30 m² großes, lichtdurchflutetes Zimmer mit eigenem luxuriösem Bad en suite eignet sich ideal als Gästebereich oder Kinderbereich mit Kinderbad. Im Expose enthalten ist ein Grundrissvorschlag, welcher die Möglichkeit aufzeigt, das große Zimmer in zwei separate Kinderzimmer aufzuteilen.

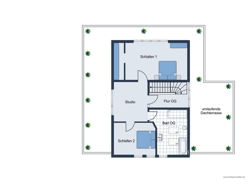
Eine elegante Treppe mit integrierter Beleuchtung führt ins Obergeschoss mit weitläufigem Flur und großzügigem Studiobereich mit ca. 2,78 m Deckenhöhe. Von hier betreten Sie die umlaufende Dachterrasse. Rechterhand des Studiobereichs liegt das Elternschlafzimmer – Ihr persönlicher Rückzugsort, der durch seine Großzügigkeit und eine ruhige Atmosphäre besticht. Ein begehbarer Kleiderschrank, elegant durch eine raumhohe Schiebetür aus satiniertem Glas zugänglich, bietet viel Stauraum für Ihre Garderobe. Angrenzend: ein weiteres Kinderzimmer sowie das exklusive Masterbad mit edlem Feinsteinzeug, bodengleicher Dusche, Eckbadewanne, maßangefertigter Waschtischanlage und großzügigen Fensterflächen.

Die separat zugängliche Einliegerwohnung mit ca. 88 m² Wohnfläche liegt dank Hanglage ebenerdig. Sie bietet einen Eingangsflur, ein exklusives Bad mit Waschmaschinenanschluss, ein lichtdurchflutetes Schlafzimmer sowie einen offenen Wohn-, Ess- und Küchenbereich mit hochwertiger Einbauküche und hellem Raumkonzept. Alle Räume der Einliegerwohnung führen auf eine separate, uneinsehbare Terrasse.

Ergänzt wird das Untergeschoss durch einen Wellnessbereich mit offener Dusche und Platz für Sauna und Fitnessgeräte. Zwei weitere, hochwertig ausgestattete Räume bieten durchdachten Mehrwert und können flexibel genutzt werden. Diese beiden Räume und der Wellnessbereich mit insgesamt 45 m² wurden nicht in die Wohnfläche eingerechnet.

Gerne präsentieren wir Ihnen dieses Anwesen bei einer persönlichen Besichtigung.

 

Ausstattung

HIGHLIGHTS IM ÜBERBLICK

  • liebevoll gestaltetes Grundstück mit ca. 570 m²
  • auf Wunsch kann das angrenzende Baugrundstück zusätzlich erworben werden
  • ca. 339 m² Wohnfläche zuzüglich ca. 150 m² Nutzfläche
  • exklusive Ausstattung mit luxuriösem Echtholzparkett aus Kirschbaum, übergroßen, schreinergefertigten Echtholztüren, edlem Feinsteinzeug und exklusiven, maßangefertigten Designermöbeln
  • lichtdurchflutete Räume durch großzügige Fensterfronten und raumhohen Schiebetüren
  • vier hochwertig ausgestattete Badezimmer
  • zwei exklusive, neuwertige Einbauküchen
  • Baujahr 2011 und 2012
  • aufwändig gestaltete Gartenanlage auf mehreren Ebenen mit viel Privatsphäre
  • unterkellerter Carport
  • Zufahrt mit elektrisch betriebener Toranlage
  • aufwändiges Heizsystem mit Fußbodenheizung, Wandheizung und Radiatoren im gesamten Haus
  • moderne Haustechnik (elektrische Raffstores, Rolläden, Key-Less Hauszugänge, zentrale Staubsaugeranlage, Entkalkungsanlage, aufwändiges Lichtkonzept)
  • großzügig ausgelegte Solarthermieanlage zur Warmwasseraufbereitung
  • separate Einliegerwohnung mit ca. 88 m² Wohnfläche zuzüglich 3 weiterer in der Wohnfläche nicht berücksichtigter Räume, ideal für heranwachsende Kinder, Gäste, Büro, Praxis oder zur Vermietung
  • gute Verkehrsanbindung
  • ruhige, familiäre Lage

Lagebeschreibung

Die Immobilie befindet sich in der Gemeinde Kranzberg im oberbayerischen Landkreis Freising, inmitten einer landschaftlich reizvollen Umgebung, die durch ihre Ruhe und Naturnähe besticht. Das Wohnumfeld ist geprägt von einer Bebauung mit überwiegend Ein- und Zweifamilienhäusern und eignet sich hervorragend für Familien, Ruhesuchende und naturverbundene Menschen, die zugleich eine gute Erreichbarkeit urbaner Strukturen schätzen.

Besonders hervorzuheben ist der hohe Freizeitwert der Lage. Die umliegende Natur mit Wiesen, Feldern und Wäldern lädt zu ausgedehnten Spaziergängen, Radtouren und anderen Outdoor-Aktivitäten ein. In der Umgebung befinden sich mehrere Rad- und Wanderwege sowie kleinere Seen, die für Erholung und sportliche Betätigung im Freien ideale Voraussetzungen bieten. Zudem bereichern zahlreiche kulturelle Veranstaltungen, Feste, Märkte und das rege Vereinsleben das gemeinschaftliche Miteinander und tragen zu einer hohen Lebensqualität bei.

Auch die Versorgung des täglichen Lebensbedarfes ist hervorragend. In den nahegelegenen Ortschaften und der pulsierenden Stadt Freising befinden sich Einkaufszentren, Supermärkte, Bäckereien, Apotheken, Ärzte, Banken sowie weitere Dienstleister. Diese sind innerhalb weniger Fahrminuten problemlos mit dem Auto oder öffentlichen Verkehrsmitteln erreichbar.

Für Familien mit Kindern ist die Lage besonders attraktiv. Eine Kindertagesstätte befindet sich nur wenige Minuten mit dem Auto entfernt.

Die nächstgelegene Grundschule liegt in der Gemeinde Kranzberg und ist in ca. 6 Minuten mit dem Auto oder Schulbus erreichbar. Weiterführende Schulen wie Realschulen, drei Gymnasien und zahlreiche berufliche Schulen, Hochschulen und Universität befinden sich in Freising und können sowohl mit dem Auto als auch mit öffentlichen Verkehrsmitteln gut erreicht werden. Selbst ein Fahrradweg entlang der wunderschönen Waldstrecke führt nach Freising.

Die Anbindung an den öffentlichen Nahverkehr ist ebenfalls gegeben: In wenigen Gehminuten erreichen Sie die Bushaltestelle „Thalhausen“. Von dort verkehrt die Buslinie 616 mit regelmäßigen Verbindungen nach Freising sowie in die umliegenden Gemeinden.

Die verkehrstechnische Anbindung ist insgesamt als sehr gut zu bewerten. Die Stadt Freising liegt nur wenige Autominuten entfernt und bietet eine umfassende städtische Infrastruktur mit vielfältigen Einkaufs-, Bildungs und Freizeitangeboten. Von dort besteht ein direkter Anschluss an das Münchner S-Bahn-Netz, mit der Linie S 1, das eine komfortable Verbindung in die Landeshauptstadt ermöglicht. Auch für Autofahrer ist die Lage ideal: Die Autobahnen A9 und A92 sind schnell erreichbar und bieten eine zügige Verbindung nach München. Der Flughafen München befindet sich nur rund 15 Autominuten entfernt, die Landeshauptstadt München etwa 30 Minuten – ein großer Vorteil für Berufspendler und Vielreisende.

 

Grundrisspläne

Energieausweis

Energiebalken
Energieausweistyp:
Bedarfsausweis
Gültig bis:
10.09.2026
Baujahr des Gebäudes:
2011
Wesentlicher Energieträger:
Flüssiggas
Energiebedarf:
62.00 kWh/m2a
Energieeffizienzklasse:
B
 

Sonstige Angaben

Es liegt ein Energiebedarfsausweis vor. Dieser ist gültig bis 10.9.2026. Endenergiebedarf beträgt 62.00 kwh/(m²*a). Wesentlicher Energieträger der Heizung ist Flüssiggas. Das Baujahr des Objekts lt. Energieausweis ist 2011. Die Energieeffizienzklasse ist B.

Bei diesem Objekt ist nicht vorgesehen, dass der Käufer mit uns eine eigenständige Provisionsvereinbarung trifft, sofern dieser als Verbraucher (§ 14 BGB) zu qualifizieren ist. Der Verkauf erfolgt nur an denjenigen, der sich bereit erklärt, einen Teil der vom Verkäufer zugesagten Provision zu übernehmen (maximal 50% vgl. § 656d BGB). Dieser Anteil beträgt 3,57% inkl. Mehrwertsteuer.

Erläuterungen zum Ablauf des Bieterverfahrens:

Der Verkauf erfolgt im Bieterverfahren. Das Bieterverfahren ist keine Auktion. Der Verkäufer ist frei in seiner Entscheidung, ob er das Angebot annimmt. Auch sind Sie als Käufer nach Abgabe des Angebotes bis zum Notartermin frei. Sie sind durch die Abgabe des Angebotes nicht gebunden. Es handelt sich um eine Kaufabsichtserklärung Ihrerseits zu dem von Ihnen genannten Kaufpreisangebot.

Wenn Sie dieses Villenanwesen mit Einliegerwohnung kaufen wollen, geben Sie ein schriftliches Gebot ab. Dieses Gebot soll dem maximalen Preis entsprechen, den Sie bereit sind, für das Objekt zu zahlen!

Sollte der Eigentümer eines der Gebote für angemessen halten, behalten wir uns vor, das Gebotsverfahren abzuschließen. Wir empfehlen daher zeitnah Angebote abzugeben. Selbstverständlich haben Sie ausreichend Zeit, um dann Ihren Angebotspreis zu kalkulieren.

Der Mindestgebotspreis für dieses exklusive Anwesen mit zugehöriger Einliegerwohnung liegt bei € 1.500.000,-.

Das Angebot ist bei uns schriftlich abzugeben. Dieses können Sie per E-Mail an office@roethig-immobilien.de, per Fax an 089/997297-38 oder mit der Post, an RÖTHIG & RÖTHIG - REM Real Estate Management GmbH & Co. KG, Pienzenauerstraße 2 in 81679 München senden. Die Gebote reichen wir an den Eigentümer weiter.

Der Eigentümer wird dann entscheiden, ob er das Angebot annimmt. Wenn dieser das Angebot annimmt, wird ein Notartermin vereinbart. Sollten Sie die Finanzierung noch nicht geklärt haben, muss dies zwischenzeitlich erfolgen.

Erst mit dem Notarvertrag sind Sie und der Verkäufer gebunden. Für Sie fallen bis zum tatsächlichen Kauf und der Beurkundung selbstverständlich keine Kosten an.

Haben Sie weitere Fragen zum Ablauf des Bieterverfahrens? Bitte kontaktieren Sie uns!

Interesse? Dann senden Sie uns Ihre Anfrage...

Gerne übersenden wir Ihnen unser ausführliches Exposé mit einer detaillierten Beschreibung des Objektes samt Planunterlagen.

 
 

Daten­schutz­ein­stellungen

Diese Webseite nutzt externe Medien, wie z.B. Karten von Google Maps und Videos von YouTube, und externe Analyse-/Marketingwerkzeuge, wie z.B. etracker, welche alle dazu genutzt werden können, Daten über Ihr Verhalten zu sammeln. Dabei werden auch Cookies gesetzt. Die Einwilligung zur Nutzung der Erweiterungen können Sie jederzeit anpassen bzw. widerrufen.
Eine Erklärung zur Funktionsweise unserer Datenschutzeinstellungen und eine Übersicht zu den verwendeten externen Komponenten finden Sie in unserer Datenschutzerklärung

Welche Cookies bzw. Erweiterungen möchten Sie zulassen?